General Information
Situs Address | 1816 N ST LOUIS AV E TULSA 74106 |
---|---|
Owner Name |
DLR PROPERTIES ENTERPRISES LLC
|
Owner Mailing Address | PO BOX 703080 TULSA , OK 741703080 |
Account Type | Residential |
Parcel ID | 05850-03-30-04150 |
Land Area | 0.17 acres / 7,420 sq ft |
School District | T-1A |
Legal Description | Subdivision: BULLETTE HGTS 2ND ADDN (05850) Legal: LT 8 BLK 9 Section: 30 Township: 20 Range: 13 |
Zoning | View City of Tulsa Zoning Data |
Improvements
Improvements
Tax Year: 2025
Tax Year | Yr Blt | Property Type | Livable | Stories | Story Height | Baths | Roof |
---|---|---|---|---|---|---|---|
Imp # | Use | Foundation | Exterior | HVAC Type | |||
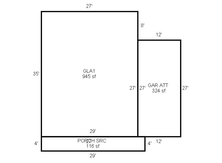
2025 | 1965 | Residential | 945 sqft | 1.00 | 8 | 1.00 | Composition Shingle |
1.00 | Ranch 1 Story | Slab | Frame Masonry Veneer | None |
Tax Year: 2024
Tax Year | Yr Blt | Property Type | Livable | Stories | Story Height | Baths | Roof |
---|---|---|---|---|---|---|---|
Imp # | Use | Foundation | Exterior | HVAC Type | |||
2024 | 1965 | Residential | 945 sqft | 1.00 | 8 | 1.00 | Composition Shingle |
1.00 | Ranch 1 Story | Slab | Frame Masonry Veneer | None |
Tax Year: 2023
Tax Year | Yr Blt | Property Type | Livable | Stories | Story Height | Baths | Roof |
---|---|---|---|---|---|---|---|
Imp # | Use | Foundation | Exterior | HVAC Type | |||
2023 | 1965 | Residential | 945 sqft | 1.00 | 8 | 1.00 | Composition Shingle |
1.00 | Ranch 1 Story | Slab | Frame Masonry Veneer | None |
Values and Tax Information
2023 | 2024 | 2025 | |
---|---|---|---|
Fair Cash(Market) Value | $29,813 | $32,801 | $39,400 |
Total Taxable Value (Capped) | $28,455 | $29,877 | $31,371 |
Improvement Value | $26,013 | $29,001 | $35,600 |
Land Value | $3,800 | $3,800 | $3,800 |
Assessment Ratio | 11% | 11% | 11% |
Gross Assessed Value | $3,130 | $3,287 | $3,451 |
Exemptions | $0 | $0 | $0 |
Net Assessed Value | $3,130 | $3,287 | $3,451 |
School District | T-1A | ||
Tax Rate | 126.91 | 129.51 | 129.51 |
Estimated taxes | $397 | $426 | $447 |
Last Notice Date | 2/28/2025 |
Exemptions Claimed
2023 | 2024 | 2025 | |
---|---|---|---|
Homestead | - | - | Apply |
Additional Homestead | - | - | - |
Senior Valuation Limitation | - | - | - |
100% Disabled Veteran | - | - | - |
Sales/Documents
Sale Date | Grantor | Grantee | Sale Price | Deed Type | Document Number |
---|---|---|---|---|---|
9/10/2020 | TRANSFORMATION PROPERTIES USA LLC | DLR PROPERTIES ENTERPRISES LLC | $0 | Corrected Quit Claim Deed | 2020100127 |
9/10/2020 | TRANSFORMATION PROPERTIES USA LLC | DLR PROPERTIES ENTERPRISES LLC | $13,500 | Quit Claim Deed | 2020089234 |
6/11/2018 | TULSA COUNTY TREASURER | TRANSFORMATION PROPERTIES LLC | $0 | County Tax Deed | 2018052672 |
6/1/1998 | $0 | General Warranty Deed | 2000012176 BK-06067PG-01995 |
Sales/Documents
Sale Date | 9/10/2020 |
---|---|
Grantor | TRANSFORMATION PROPERTIES USA LLC |
Grantee | DLR PROPERTIES ENTERPRISES LLC |
Sale Price | $0 |
Deed Type | Corrected Quit Claim Deed |
Document Number | 2020100127 |
Sale Date | 9/10/2020 |
Grantor | TRANSFORMATION PROPERTIES USA LLC |
Grantee | DLR PROPERTIES ENTERPRISES LLC |
Sale Price | $13,500 |
Deed Type | Quit Claim Deed |
Document Number | 2020089234 |
Sale Date | 6/11/2018 |
Grantor | TULSA COUNTY TREASURER |
Grantee | TRANSFORMATION PROPERTIES LLC |
Sale Price | $0 |
Deed Type | County Tax Deed |
Document Number | 2018052672 |
Sale Date | 6/1/1998 |
Grantor | |
Grantee | |
Sale Price | $0 |
Deed Type | General Warranty Deed |
Document Number | 2000012176 BK-06067PG-01995 |