General Information
| Situs Address | 13704 E 14 ST S TULSA 74108 |
|---|---|
| Owner Name |
MORA, JOSE
|
| Owner Mailing Address | 13704 E 14TH ST TULSA , OK 741085532 |
| Account Type | Residential |
| Parcel ID | 12145-94-09-42470 |
| Land Area | 0.20 acres / 8,750 sq ft |
| School District | T-1A |
| Legal Description | Subdivision: EASTLAND PARK (12145) Legal: LT 8 BLK 1 Section: 09 Township: 19 Range: 14 |
| Zoning | View City of Tulsa Zoning Data |
Improvements
Improvements
Tax Year: 2025
| Tax Year | Yr Blt | Property Type | Livable | Stories | Story Height | Baths | Roof |
|---|---|---|---|---|---|---|---|
| Imp # | Use | Foundation | Exterior | HVAC Type | |||
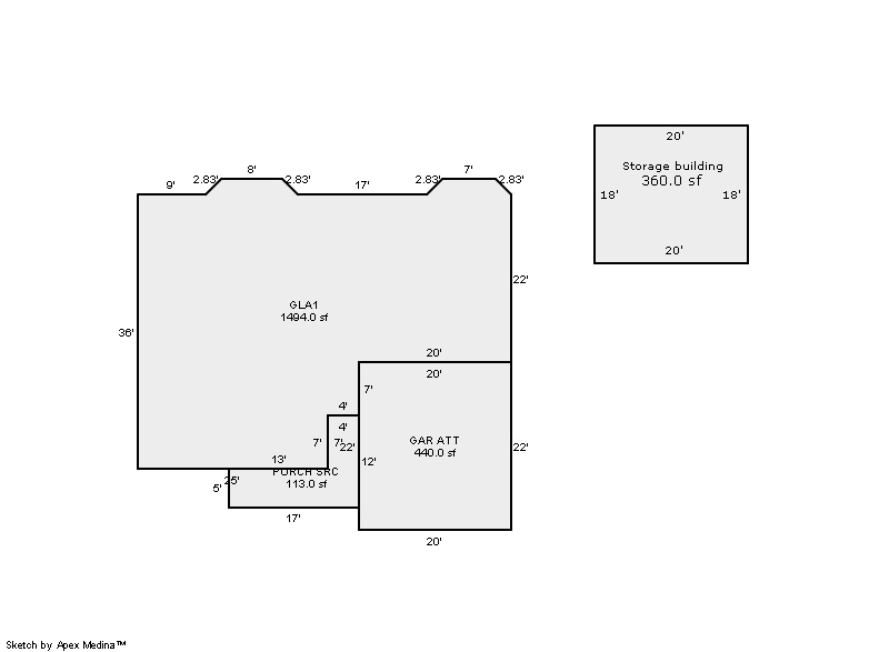
| 2025 | 1989 | Residential | 1,494 sqft | 1.00 | 8 | 2.00 | Composition Shingle |
| 1.00 | Ranch 1 Story | Slab | FrameSiding/MasonryVeneer | Cool Air in Heat Ducts | |||
Tax Year: 2024
| Tax Year | Yr Blt | Property Type | Livable | Stories | Story Height | Baths | Roof |
|---|---|---|---|---|---|---|---|
| Imp # | Use | Foundation | Exterior | HVAC Type | |||
| 2024 | 1989 | Residential | 1,494 sqft | 1.00 | 8 | 2.00 | Composition Shingle |
| 1.00 | Ranch 1 Story | Slab | FrameSiding/MasonryVeneer | Cool Air in Heat Ducts | |||
Tax Year: 2023
| Tax Year | Yr Blt | Property Type | Livable | Stories | Story Height | Baths | Roof |
|---|---|---|---|---|---|---|---|
| Imp # | Use | Foundation | Exterior | HVAC Type | |||
| 2023 | 1989 | Residential | 1,494 sqft | 1.00 | 8 | 2.00 | Composition Shingle |
| 1.00 | Ranch 1 Story | Slab | FrameSiding/MasonryVeneer | Cool Air in Heat Ducts | |||
Values and Tax Information
| 2023 | 2024 | 2025 | |
|---|---|---|---|
| Fair Cash(Market) Value | $171,734 | $163,781 | $155,500 |
| Total Taxable Value (Capped) | $132,377 | $136,348 | $155,500 |
| Improvement Value | $145,554 | $137,601 | $129,320 |
| Land Value | $26,180 | $26,180 | $26,180 |
| Assessment Ratio | 11% | 11% | 11% |
| Gross Assessed Value | $14,562 | $14,998 | $17,105 |
| Exemptions | -$1,000 | -$1,000 | $0 |
| Net Assessed Value | $13,562 | $13,998 | $17,105 |
| School District | T-1A | ||
| Tax Rate | 126.91 | 129.51 | 134.01 |
| Estimated taxes | $1,721 | $1,813 | $2,292 |
| Last Notice Date | 3/25/2025 | ||
Exemptions Claimed
| 2023 | 2024 | 2025 | |
|---|---|---|---|
| Homestead | Apply | ||
| Additional Homestead | - | - | - |
| Senior Valuation Limitation | - | - | - |
| 100% Disabled Veteran | - | - | - |
Sales/Documents
| Sale Date | Grantor | Grantee | Sale Price | Deed Type | Document Number |
|---|---|---|---|---|---|
| 10/11/2024 | HYLTON, TIMOTHY P | MORA, JOSE | $203,000 | Warranty Deed | 2024086488 |
| 8/3/2011 | HYLTON, ESTHER | HYLTON, TIMOTHY P | $0 | Divorce Decree | 2019000947 |
| 11/13/2009 | FEDERAL NATIONAL MORTGAGE ASSOCIATION | HYLTON, TIMOTHY P & ESTHER | $98,500 | Special Warranty Deed | 2009118534 |
| 6/5/2008 | SHERIFF TULSA CO | FNMA | $0 | Sheriff's Deed | 2008058196 |
Sales/Documents
| Sale Date | 10/11/2024 |
|---|---|
| Grantor | HYLTON, TIMOTHY P |
| Grantee | MORA, JOSE |
| Sale Price | $203,000 |
| Deed Type | Warranty Deed |
| Document Number | 2024086488 |
| Sale Date | 8/3/2011 |
| Grantor | HYLTON, ESTHER |
| Grantee | HYLTON, TIMOTHY P |
| Sale Price | $0 |
| Deed Type | Divorce Decree |
| Document Number | 2019000947 |
| Sale Date | 11/13/2009 |
| Grantor | FEDERAL NATIONAL MORTGAGE ASSOCIATION |
| Grantee | HYLTON, TIMOTHY P & ESTHER |
| Sale Price | $98,500 |
| Deed Type | Special Warranty Deed |
| Document Number | 2009118534 |
| Sale Date | 6/5/2008 |
| Grantor | SHERIFF TULSA CO |
| Grantee | FNMA |
| Sale Price | $0 |
| Deed Type | Sheriff's Deed |
| Document Number | 2008058196 |