General Information
Situs Address | 1159 N FRANKFORT AV E TULSA 74106 |
---|---|
Owner Name |
BRAILFORD, BARBARA J
|
Owner Mailing Address | 1159 N FRANKFORT AVE TULSA , OK 741064801 |
Account Type | Residential |
Parcel ID | 17025-02-36-12180 |
Land Area | 0.15 acres / 6,500 sq ft |
School District | T-1A |
Legal Description | Subdivision: GREENWOOD ADDN (17025) Legal: LT 13 BLK 11 Section: 36 Township: 20 Range: 12 |
Zoning | View City of Tulsa Zoning Data |
Improvements
Improvements
Tax Year: 2025
Tax Year | Yr Blt | Property Type | Livable | Stories | Story Height | Baths | Roof |
---|---|---|---|---|---|---|---|
Imp # | Use | Foundation | Exterior | HVAC Type | |||
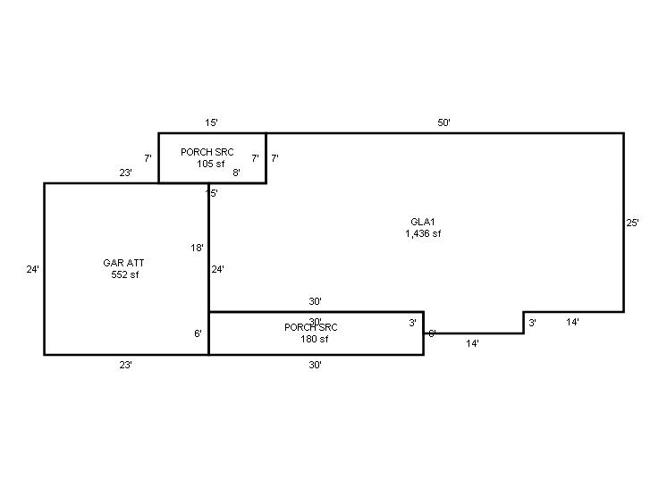
2025 | 1986 | Residential | 1,436 sqft | 1.00 | 8 | 1.00 | Composition Shingle |
1.00 | Ranch 1 Story | Crawl Space | Frame Siding/Brick/Stone Veneer | Cool Air in Heat Ducts |
Tax Year: 2024
Tax Year | Yr Blt | Property Type | Livable | Stories | Story Height | Baths | Roof |
---|---|---|---|---|---|---|---|
Imp # | Use | Foundation | Exterior | HVAC Type | |||
2024 | 1986 | Residential | 1,436 sqft | 1.00 | 8 | 1.00 | Composition Shingle |
1.00 | Ranch 1 Story | Crawl Space | Frame Siding/Brick/Stone Veneer | Cool Air in Heat Ducts |
Tax Year: 2023
Tax Year | Yr Blt | Property Type | Livable | Stories | Story Height | Baths | Roof |
---|---|---|---|---|---|---|---|
Imp # | Use | Foundation | Exterior | HVAC Type | |||
2023 | 1986 | Residential | 1,436 sqft | 1.00 | 8 | 1.00 | Composition Shingle |
1.00 | Ranch 1 Story | Crawl Space | Frame Siding/Brick/Stone Veneer | Cool Air in Heat Ducts |
Values and Tax Information
2023 | 2024 | 2025 | |
---|---|---|---|
Fair Cash(Market) Value | $134,606 | $148,066 | $177,700 |
Total Taxable Value (Capped) | $103,358 | $106,459 | $109,653 |
Improvement Value | $125,499 | $138,959 | $168,593 |
Land Value | $9,107 | $9,107 | $9,107 |
Assessment Ratio | 11% | 11% | 11% |
Gross Assessed Value | $11,369 | $11,710 | $12,062 |
Exemptions | -$1,000 | -$1,000 | -$1,000 |
Net Assessed Value | $10,369 | $10,710 | $11,062 |
School District | T-1A | ||
Tax Rate | 126.91 | 129.51 | 134.01 |
Estimated taxes | $1,316 | $1,387 | $1,482 |
Last Notice Date | 3/25/2025 |
Exemptions Claimed
2023 | 2024 | 2025 | |
---|---|---|---|
Homestead | |||
Additional Homestead | - | - | - |
Senior Valuation Limitation | - | - | - |
100% Disabled Veteran | - | - | - |
Sales/Documents
Sale Date | Grantor | Grantee | Sale Price | Deed Type | Document Number |
---|---|---|---|---|---|
5/25/2023 | BRAILFORD, BARBARA J | MCNEALY, CORLISS DIANNE | $0 | Transfer on Death | 2023047206 |
5/25/2023 | BRAILFORD, J BARBARA | BRAILFORD, BARBARA J | $0 | Rev TOD Deed | 2023047203 |
4/17/2019 | BRAILFORD, BARBARA J | MCNEALY, CORLISS DIANNE | $0 | Transfer on Death | 2019032253 |
4/17/2019 | BRAILFORD, BARBARA J | BRAILFORD, BARBARA J | $0 | Rev TOD Deed | 2019032252 |
6/20/2014 | BRAILFORD, BARBARA J | POWELL, KIMBERLY D | $0 | Transfer on Death | 2014052741 |
4/1/2003 | $83,500 | General Warranty Deed | 2000038404 BK-06993PG-00082 |
Sales/Documents
Sale Date | 5/25/2023 |
---|---|
Grantor | BRAILFORD, BARBARA J |
Grantee | MCNEALY, CORLISS DIANNE |
Sale Price | $0 |
Deed Type | Transfer on Death |
Document Number | 2023047206 |
Sale Date | 5/25/2023 |
Grantor | BRAILFORD, J BARBARA |
Grantee | BRAILFORD, BARBARA J |
Sale Price | $0 |
Deed Type | Rev TOD Deed |
Document Number | 2023047203 |
Sale Date | 4/17/2019 |
Grantor | BRAILFORD, BARBARA J |
Grantee | MCNEALY, CORLISS DIANNE |
Sale Price | $0 |
Deed Type | Transfer on Death |
Document Number | 2019032253 |
Sale Date | 4/17/2019 |
Grantor | BRAILFORD, BARBARA J |
Grantee | BRAILFORD, BARBARA J |
Sale Price | $0 |
Deed Type | Rev TOD Deed |
Document Number | 2019032252 |
Sale Date | 6/20/2014 |
Grantor | BRAILFORD, BARBARA J |
Grantee | POWELL, KIMBERLY D |
Sale Price | $0 |
Deed Type | Transfer on Death |
Document Number | 2014052741 |
Sale Date | 4/1/2003 |
Grantor | |
Grantee | |
Sale Price | $83,500 |
Deed Type | General Warranty Deed |
Document Number | 2000038404 BK-06993PG-00082 |