General Information
Situs Address | 6214 E MARSHALL ST N TULSA 741156614 |
---|---|
Owner Name |
CHARLES, JOHNNY WAYNE & HEIDE C
|
Owner Mailing Address | 6214 E MARSHALL ST TULSA , OK 741156614 |
Account Type | Residential |
Parcel ID | 25050-03-34-06900 |
Land Area | 0.16 acres / 7,182 sq ft |
School District | T-1A |
Legal Description | Subdivision: MAPLEWOOD ADDN (25050) Legal: LT 16 BLK 16 Section: 34 Township: 20 Range: 13 |
Zoning | View City of Tulsa Zoning Data |
Improvements
Improvements
Tax Year: 2025
Tax Year | Yr Blt | Property Type | Livable | Stories | Story Height | Baths | Roof |
---|---|---|---|---|---|---|---|
Imp # | Use | Foundation | Exterior | HVAC Type | |||
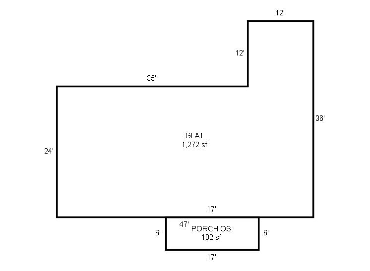
2025 | 1951 | Residential | 1,272 sqft | 1.00 | 8 | 1.00 | Composition Shingle |
1.00 | Ranch 1 Story | Crawl Space | Frame Siding/Stucco Veneer | Cool Air in Heat Ducts |
Tax Year: 2024
Tax Year | Yr Blt | Property Type | Livable | Stories | Story Height | Baths | Roof |
---|---|---|---|---|---|---|---|
Imp # | Use | Foundation | Exterior | HVAC Type | |||
2024 | 1951 | Residential | 1,272 sqft | 1.00 | 8 | 1.00 | Composition Shingle |
1.00 | Ranch 1 Story | Crawl Space | Frame Siding/Stucco Veneer | Cool Air in Heat Ducts |
Tax Year: 2023
Tax Year | Yr Blt | Property Type | Livable | Stories | Story Height | Baths | Roof |
---|---|---|---|---|---|---|---|
Imp # | Use | Foundation | Exterior | HVAC Type | |||
2023 | 1951 | Residential | 1,272 sqft | 1.00 | 8 | 1.00 | Composition Shingle |
1.00 | Ranch 1 Story | Crawl Space | Frame Siding/Stucco Veneer | Cool Air in Heat Ducts |
Values and Tax Information
2023 | 2024 | 2025 | |
---|---|---|---|
Fair Cash(Market) Value | $79,356 | $87,297 | $96,000 |
Total Taxable Value (Capped) | $62,808 | $65,948 | $69,245 |
Improvement Value | $67,056 | $74,997 | $83,700 |
Land Value | $12,300 | $12,300 | $12,300 |
Assessment Ratio | 11% | 11% | 11% |
Gross Assessed Value | $6,909 | $7,254 | $7,617 |
Exemptions | $0 | $0 | $0 |
Net Assessed Value | $6,909 | $7,254 | $7,617 |
School District | T-1A | ||
Tax Rate | 126.91 | 129.51 | 134.01 |
Estimated taxes | $877 | $939 | $1,021 |
Last Notice Date | 2/28/2025 |
Exemptions Claimed
2023 | 2024 | 2025 | |
---|---|---|---|
Homestead | - | - | Apply |
Additional Homestead | - | - | - |
Senior Valuation Limitation | - | - | - |
100% Disabled Veteran | - | - | - |
Sales/Documents
Sale Date | Grantor | Grantee | Sale Price | Deed Type | Document Number |
---|---|---|---|---|---|
3/16/2012 | CHARLES, JOHNNY WAYNE | CHARLES, JOHNNY WAYNE & HEIDE C | $0 | Quit Claim Deed | 2012027354 |
4/30/2009 | CHARLES, ANNA L | CHARLES, JOHNNY WAYNE | $0 | Affidavit Of Surviving Joint Tenant | 2009044817 |
2/28/2008 | CHARLES, ANNA L | CHARLES, ANNA L AND JOHNNY WAYNE | $0 | Quit Claim Deed | 2008020572 |
Sales/Documents
Sale Date | 3/16/2012 |
---|---|
Grantor | CHARLES, JOHNNY WAYNE |
Grantee | CHARLES, JOHNNY WAYNE & HEIDE C |
Sale Price | $0 |
Deed Type | Quit Claim Deed |
Document Number | 2012027354 |
Sale Date | 4/30/2009 |
Grantor | CHARLES, ANNA L |
Grantee | CHARLES, JOHNNY WAYNE |
Sale Price | $0 |
Deed Type | Affidavit Of Surviving Joint Tenant |
Document Number | 2009044817 |
Sale Date | 2/28/2008 |
Grantor | CHARLES, ANNA L |
Grantee | CHARLES, ANNA L AND JOHNNY WAYNE |
Sale Price | $0 |
Deed Type | Quit Claim Deed |
Document Number | 2008020572 |