General Information
| Situs Address | 4138 E 53 PL S TULSA 741354800 |
|---|---|
| Owner Name |
FLINTON, ANITA Y REVOCABLE TRUST
|
| Owner Mailing Address | C/O ANITA Y FLINTON TTEE 4138 E 53RD PL TULSA, OK 741354800 |
| Account Type | Residential |
| Parcel ID | 29750-93-33-09200 |
| Land Area | 0.95 acres / 41,381 sq ft |
| School District | T-1A |
| Legal Description | Subdivision: NOVELL WOODS ADDN (29750) Legal: W364.53 LT9 & PRT LT 8 BEG NEC TH S95.03 NW195.83 E104.37 NE48.77 CRV LF 39.35 POB LESS BEG NEC LT 8 TH CRV RT 11.43 SW49.08 SE218 N122.36 W114.98 CRV LF 48.28 CRV RT 32.20 POB & LESS BEG SWC LT 9 TH E162.92 NW167.85 S39.90 POB Section: 33 Township: 19 Range: 13 |
| Zoning | View City of Tulsa Zoning Data |
Improvements
Improvements
Tax Year: 2025
| Tax Year | Yr Blt | Property Type | Livable | Stories | Story Height | Baths | Roof |
|---|---|---|---|---|---|---|---|
| Imp # | Use | Foundation | Exterior | HVAC Type | |||
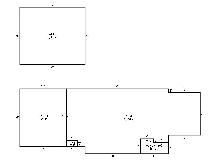
| 2025 | 1960 | Residential | 3,239 sqft | 1.50 | 8 | 4.10 | Composition Shingle |
| 1.00 | 1½ Story Fin | Crawl Space | Frame Siding/Brick/Stone Veneer | Heat Pump | |||
Tax Year: 2024
| Tax Year | Yr Blt | Property Type | Livable | Stories | Story Height | Baths | Roof |
|---|---|---|---|---|---|---|---|
| Imp # | Use | Foundation | Exterior | HVAC Type | |||
| 2024 | 1960 | Residential | 3,239 sqft | 1.50 | 8 | 4.10 | Composition Shingle |
| 1.00 | 1½ Story Fin | Crawl Space | Frame Siding/Brick/Stone Veneer | Heat Pump | |||
Tax Year: 2023
| Tax Year | Yr Blt | Property Type | Livable | Stories | Story Height | Baths | Roof |
|---|---|---|---|---|---|---|---|
| Imp # | Use | Foundation | Exterior | HVAC Type | |||
| 2023 | 1960 | Residential | 3,239 sqft | 1.50 | 8 | 4.10 | Composition Shingle |
| 1.00 | 1½ Story Fin | Crawl Space | Frame Siding/Brick/Stone Veneer | Heat Pump | |||
Values and Tax Information
| 2023 | 2024 | 2025 | |
|---|---|---|---|
| Fair Cash(Market) Value | $411,804 | $430,911 | $461,400 |
| Total Taxable Value (Capped) | $285,905 | $300,200 | $315,210 |
| Improvement Value | $364,774 | $383,881 | $414,370 |
| Land Value | $47,030 | $47,030 | $47,030 |
| Assessment Ratio | 11% | 11% | 11% |
| Gross Assessed Value | $31,450 | $33,022 | $34,673 |
| Exemptions | $0 | $0 | $0 |
| Net Assessed Value | $31,450 | $33,022 | $34,673 |
| School District | T-1A | ||
| Tax Rate | 126.91 | 129.51 | 134.01 |
| Estimated taxes | $3,991 | $4,277 | $4,647 |
| Last Notice Date | 1/28/2025 | ||
Exemptions Claimed
| 2023 | 2024 | 2025 | |
|---|---|---|---|
| Homestead | - | - | Apply |
| Additional Homestead | - | - | - |
| Senior Valuation Limitation | - | - | - |
| 100% Disabled Veteran | - | - | - |
Sales/Documents
| Sale Date | Grantor | Grantee | Sale Price | Deed Type | Document Number |
|---|---|---|---|---|---|
| 10/31/2017 | FLINTON, CHARLES A & ANITA Y | FLINTON, ANITA Y REVOCABLE TRUST | $0 | Corrected Quit Claim Deed | 2017103756 |
| 10/17/2017 | FLINTON, CHARLES A & ANITA Y | FLINTON, ANITY Y REVOCABLE TRUST | $0 | Quit Claim Deed | 2017095734 |
| 3/30/2010 | EDWARDS, JEANNE | FLINTON, CHARLES A & ANITA Y | $274,000 | General Warranty Deed | 2010032205 |
| 8/7/1997 | EDWARDS, JAMES D | EDWARDS, JEANNE | $0 | Affidavit Of Surviving Joint Tenant | 1997076014 |
| 10/5/1960 | METROPOLITAN BUILDING COMPANY | EDWARDS, JAMES D & JEANNIE | $0 | History | 1960034820 |
Sales/Documents
| Sale Date | 10/31/2017 |
|---|---|
| Grantor | FLINTON, CHARLES A & ANITA Y |
| Grantee | FLINTON, ANITA Y REVOCABLE TRUST |
| Sale Price | $0 |
| Deed Type | Corrected Quit Claim Deed |
| Document Number | 2017103756 |
| Sale Date | 10/17/2017 |
| Grantor | FLINTON, CHARLES A & ANITA Y |
| Grantee | FLINTON, ANITY Y REVOCABLE TRUST |
| Sale Price | $0 |
| Deed Type | Quit Claim Deed |
| Document Number | 2017095734 |
| Sale Date | 3/30/2010 |
| Grantor | EDWARDS, JEANNE |
| Grantee | FLINTON, CHARLES A & ANITA Y |
| Sale Price | $274,000 |
| Deed Type | General Warranty Deed |
| Document Number | 2010032205 |
| Sale Date | 8/7/1997 |
| Grantor | EDWARDS, JAMES D |
| Grantee | EDWARDS, JEANNE |
| Sale Price | $0 |
| Deed Type | Affidavit Of Surviving Joint Tenant |
| Document Number | 1997076014 |
| Sale Date | 10/5/1960 |
| Grantor | METROPOLITAN BUILDING COMPANY |
| Grantee | EDWARDS, JAMES D & JEANNIE |
| Sale Price | $0 |
| Deed Type | History |
| Document Number | 1960034820 |