General Information
| Situs Address | 2200 S UTICA PL E TULSA 74114 |
|---|---|
| Owner Name |
CARY, JOHN W III TRUST
|
| Owner Mailing Address | 2200 S UTICA PL APT 7B TULSA , OK 741147006 |
| Account Type | Residential |
| Parcel ID | 30736-93-18-33800 |
| Land Area | 0.00 acres / 0 sq ft |
| School District | T-1A |
| Legal Description | Subdivision: ONE UTICA PLACE (30736) Legal: UNIT 13 7E-ROMA & 2.04 INT IN COMMON ELEMENTS OF UTICA PLACE CONDOMINIUM BEING LT 1 BLK 1 Section: 18 Township: 19 Range: 13 |
| Zoning | View City of Tulsa Zoning Data |
Improvements
Improvements
Tax Year: 2025
| Tax Year | Yr Blt | Property Type | Livable | Stories | Story Height | Baths | Roof |
|---|---|---|---|---|---|---|---|
| Imp # | Use | Foundation | Exterior | HVAC Type | |||
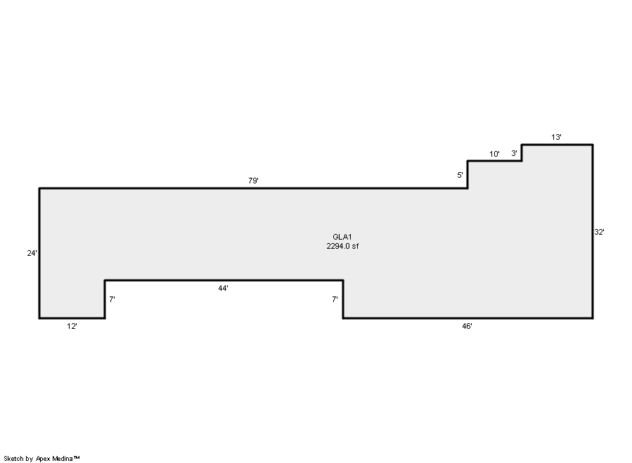
| 2025 | 2008 | Condo | 2,294 sqft | 1.00 | 9 | 2.10 | Clay Tile |
| 1.00 | Condo <= 3 Stories | Slab | Frame Siding/Stucco Veneer | Cool Air in Heat Ducts | |||
Tax Year: 2024
| Tax Year | Yr Blt | Property Type | Livable | Stories | Story Height | Baths | Roof |
|---|---|---|---|---|---|---|---|
| Imp # | Use | Foundation | Exterior | HVAC Type | |||
| 2024 | 2008 | Condo | 2,294 sqft | 1.00 | 9 | 2.10 | Clay Tile |
| 1.00 | Condo <= 3 Stories | Slab | Frame Siding/Stucco Veneer | Cool Air in Heat Ducts | |||
Tax Year: 2023
| Tax Year | Yr Blt | Property Type | Livable | Stories | Story Height | Baths | Roof |
|---|---|---|---|---|---|---|---|
| Imp # | Use | Foundation | Exterior | HVAC Type | |||
| 2023 | 2008 | Condo | 2,294 sqft | 1.00 | 9 | 2.10 | Clay Tile |
| 1.00 | Condo <= 3 Stories | Slab | Frame Siding/Stucco Veneer | Cool Air in Heat Ducts | |||
Values and Tax Information
| 2023 | 2024 | 2025 | |
|---|---|---|---|
| Fair Cash(Market) Value | $1,500,000 | $1,500,000 | $1,500,000 |
| Total Taxable Value (Capped) | $1,500,000 | $1,500,000 | $1,500,000 |
| Improvement Value | $1,476,050 | $1,476,050 | $1,476,050 |
| Land Value | $23,950 | $23,950 | $23,950 |
| Assessment Ratio | 11% | 11% | 11% |
| Gross Assessed Value | $165,001 | $165,001 | $165,001 |
| Exemptions | $0 | $0 | $0 |
| Net Assessed Value | $165,001 | $165,001 | $165,001 |
| School District | T-1A | ||
| Tax Rate | 126.91 | 129.51 | 134.01 |
| Estimated taxes | $20,940 | $21,369 | $22,112 |
| Last Notice Date | There is no recent notice date for this property | ||
Exemptions Claimed
| 2023 | 2024 | 2025 | |
|---|---|---|---|
| Homestead | - | - | Apply |
| Additional Homestead | - | - | - |
| Senior Valuation Limitation | - | - | - |
| 100% Disabled Veteran | - | - | - |
Sales/Documents
| Sale Date | Grantor | Grantee | Sale Price | Deed Type | Document Number |
|---|---|---|---|---|---|
| 5/20/2019 | KRUGER, WARREN F TRUST | CARY, JOHN W III TRUST | $1,500,000 | Trustee's Deed | 2019044080 |
| 12/30/2013 | KRUGER, WARREN F | KRUGER, WARREN F TTEE WARREN F KRUGER TRUST | $0 | Quit Claim Deed | 2014002111 |
| 8/28/2012 | TYLER, ROBERT B SUCCESSOR TTEE DOYLE W COTTON JR TR | KRUGER, WARREN F | $952,000 | Warranty Deed | 2012087334 |
| 8/20/2008 | UTICA PLACE LLC | COTTON, DOYLE W JR TRUSTEE DOYLE W COTTON JR TR | $1,337,000 | General Warranty Deed | 2008087461 |
| 8/4/2006 | UTICA PLACE LLC | UTICA PLACE | $0 | History | 2006089696 |
Sales/Documents
| Sale Date | 5/20/2019 |
|---|---|
| Grantor | KRUGER, WARREN F TRUST |
| Grantee | CARY, JOHN W III TRUST |
| Sale Price | $1,500,000 |
| Deed Type | Trustee's Deed |
| Document Number | 2019044080 |
| Sale Date | 12/30/2013 |
| Grantor | KRUGER, WARREN F |
| Grantee | KRUGER, WARREN F TTEE WARREN F KRUGER TRUST |
| Sale Price | $0 |
| Deed Type | Quit Claim Deed |
| Document Number | 2014002111 |
| Sale Date | 8/28/2012 |
| Grantor | TYLER, ROBERT B SUCCESSOR TTEE DOYLE W COTTON JR TR |
| Grantee | KRUGER, WARREN F |
| Sale Price | $952,000 |
| Deed Type | Warranty Deed |
| Document Number | 2012087334 |
| Sale Date | 8/20/2008 |
| Grantor | UTICA PLACE LLC |
| Grantee | COTTON, DOYLE W JR TRUSTEE DOYLE W COTTON JR TR |
| Sale Price | $1,337,000 |
| Deed Type | General Warranty Deed |
| Document Number | 2008087461 |
| Sale Date | 8/4/2006 |
| Grantor | UTICA PLACE LLC |
| Grantee | UTICA PLACE |
| Sale Price | $0 |
| Deed Type | History |
| Document Number | 2006089696 |