General Information
Situs Address | 818 S TROOST AV E TULSA 74120 |
---|---|
Owner Name |
KINZER, GAGE
|
Owner Mailing Address | 818 S TROOST AVE TULSA , OK 741204832 |
Account Type | Residential |
Parcel ID | 31175-93-06-19850 |
Land Area | 0.16 acres / 7,000 sq ft |
School District | T-1A |
Legal Description | Subdivision: PARK DALE AMD (31175) Legal: LTS 9 & 10 BLK 7 Section: 06 Township: 19 Range: 13 |
Zoning | View City of Tulsa Zoning Data |
Improvements
Improvements
Tax Year: 2025
Tax Year | Yr Blt | Property Type | Livable | Stories | Story Height | Baths | Roof |
---|---|---|---|---|---|---|---|
Imp # | Use | Foundation | Exterior | HVAC Type | |||
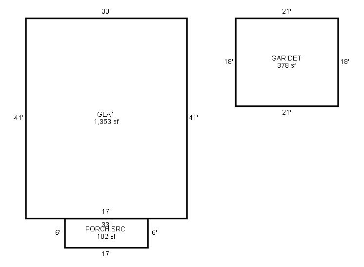
2025 | 1935 | Duplex | 1,353 sqft | 1.00 | 8 | 2.00 | Composition Shingle |
1.00 | Duplex One Story | Crawl Space | Frame Siding/Brick/Stone Veneer | None |
Tax Year: 2024
Tax Year | Yr Blt | Property Type | Livable | Stories | Story Height | Baths | Roof |
---|---|---|---|---|---|---|---|
Imp # | Use | Foundation | Exterior | HVAC Type | |||
2024 | 1935 | Duplex | 1,353 sqft | 1.00 | 8 | 2.00 | Composition Shingle |
1.00 | Duplex One Story | Crawl Space | Frame Siding/Brick/Stone Veneer | None |
Tax Year: 2023
Tax Year | Yr Blt | Property Type | Livable | Stories | Story Height | Baths | Roof |
---|---|---|---|---|---|---|---|
Imp # | Use | Foundation | Exterior | HVAC Type | |||
2023 | 1935 | Duplex | 1,353 sqft | 1.00 | 8 | 2.00 | Composition Shingle |
1.00 | Duplex One Story | Crawl Space | Frame Siding/Brick/Stone Veneer | None |
Values and Tax Information
2023 | 2024 | 2025 | |
---|---|---|---|
Fair Cash(Market) Value | $148,000 | $148,000 | $280,000 |
Total Taxable Value (Capped) | $148,000 | $148,000 | $280,000 |
Improvement Value | $139,900 | $139,900 | $271,900 |
Land Value | $8,100 | $8,100 | $8,100 |
Assessment Ratio | 11% | 11% | 11% |
Gross Assessed Value | $16,280 | $16,280 | $30,800 |
Exemptions | $0 | $0 | -$1,000 |
Net Assessed Value | $16,280 | $16,280 | $29,800 |
School District | T-1A | ||
Tax Rate | 126.91 | 129.51 | 134.01 |
Estimated taxes | $2,066 | $2,108 | $3,994 |
Last Notice Date | 3/25/2025 |
Exemptions Claimed
2023 | 2024 | 2025 | |
---|---|---|---|
Homestead | - | - | |
Additional Homestead | - | - | - |
Senior Valuation Limitation | - | - | - |
100% Disabled Veteran | - | - | - |
Sales/Documents
Sale Date | Grantor | Grantee | Sale Price | Deed Type | Document Number |
---|---|---|---|---|---|
3/18/2024 | PEARL DISTRICT AIRBNB LLC | KINZER, GAGE | $280,000 | Warranty Deed | 2024024757 |
10/4/2021 | IHLOFF, WILLIAM & JILLIAN; IHLOFF, WILLIAM HOWARD; WJI PROPERTIES LLC | PEARL DISTRICT AIRBNB LLC | $800,000 | General Warranty Deed | 2021116671 |
9/16/2020 | TROOST TRINITY LLC; R.E.M. LLC | WJI PROPERTIES LLC | $210,000 | General Warranty Deed | 2020090505 |
12/15/2017 | GUSTO PROPERTIES LLC | REM LLC | $35,000 | General Warranty Deed | 2017116707 |
12/11/2017 | WESLEY, KAIVEN & KEWIN TAYLOR | GUSTO PROPERTIES LLC | $19,500 | General Warranty Deed | 2017116706 |
6/29/2017 | CONNER, MYRA L & BETTY JO THOMPSON | CONNER, MYRA L | $0 | Corr Affidavit Of Surviving Joint Tenant | 2017078283 |
2/24/2017 | CONNER, MYRA L & BETTY JO THOMPSON | CONNER, MYRA L | $0 | Affidavit Of Surviving Joint Tenant | 2017063222 |
2/24/2017 | CONNER, MYRA L | WESLEY, KAIVEN & KEWIN TAYLOR | $0 | Corrected General Warranty Deed | 2017060326 |
2/24/2017 | CONNER, MYRA | WESLEY, KAIVEN & KEWIN TAYLOR | $0 | General Warranty Deed | 2017052651 |
8/6/1999 | CONNER, MYRA L & HUBERT D | CONNER, MYRA L & BETTY J THOMPSON | $0 | History | 1999094378 |
Sales/Documents
Sale Date | 3/18/2024 |
---|---|
Grantor | PEARL DISTRICT AIRBNB LLC |
Grantee | KINZER, GAGE |
Sale Price | $280,000 |
Deed Type | Warranty Deed |
Document Number | 2024024757 |
Sale Date | 10/4/2021 |
Grantor | IHLOFF, WILLIAM & JILLIAN; IHLOFF, WILLIAM HOWARD; WJI PROPERTIES LLC |
Grantee | PEARL DISTRICT AIRBNB LLC |
Sale Price | $800,000 |
Deed Type | General Warranty Deed |
Document Number | 2021116671 |
Sale Date | 9/16/2020 |
Grantor | TROOST TRINITY LLC; R.E.M. LLC |
Grantee | WJI PROPERTIES LLC |
Sale Price | $210,000 |
Deed Type | General Warranty Deed |
Document Number | 2020090505 |
Sale Date | 12/15/2017 |
Grantor | GUSTO PROPERTIES LLC |
Grantee | REM LLC |
Sale Price | $35,000 |
Deed Type | General Warranty Deed |
Document Number | 2017116707 |
Sale Date | 12/11/2017 |
Grantor | WESLEY, KAIVEN & KEWIN TAYLOR |
Grantee | GUSTO PROPERTIES LLC |
Sale Price | $19,500 |
Deed Type | General Warranty Deed |
Document Number | 2017116706 |
Sale Date | 6/29/2017 |
Grantor | CONNER, MYRA L & BETTY JO THOMPSON |
Grantee | CONNER, MYRA L |
Sale Price | $0 |
Deed Type | Corr Affidavit Of Surviving Joint Tenant |
Document Number | 2017078283 |
Sale Date | 2/24/2017 |
Grantor | CONNER, MYRA L & BETTY JO THOMPSON |
Grantee | CONNER, MYRA L |
Sale Price | $0 |
Deed Type | Affidavit Of Surviving Joint Tenant |
Document Number | 2017063222 |
Sale Date | 2/24/2017 |
Grantor | CONNER, MYRA L |
Grantee | WESLEY, KAIVEN & KEWIN TAYLOR |
Sale Price | $0 |
Deed Type | Corrected General Warranty Deed |
Document Number | 2017060326 |
Sale Date | 2/24/2017 |
Grantor | CONNER, MYRA |
Grantee | WESLEY, KAIVEN & KEWIN TAYLOR |
Sale Price | $0 |
Deed Type | General Warranty Deed |
Document Number | 2017052651 |
Sale Date | 8/6/1999 |
Grantor | CONNER, MYRA L & HUBERT D |
Grantee | CONNER, MYRA L & BETTY J THOMPSON |
Sale Price | $0 |
Deed Type | History |
Document Number | 1999094378 |