General Information
Situs Address | 5869 S HUDSON PL E TULSA 74135 |
---|---|
Owner Name |
PAGE, JOHN & WAYNE E GOWER
|
Owner Mailing Address | 5869 S HUDSON PL TULSA , OK 741357645 |
Account Type | Residential |
Parcel ID | 31350-93-34-03250 |
Land Area | 0.29 acres / 12,420 sq ft |
School District | T-1A |
Legal Description | Subdivision: PARK PLAZA (31350) Legal: LOT 12 BLK 13 Section: 34 Township: 19 Range: 13 |
Zoning | View City of Tulsa Zoning Data |
Improvements
Improvements
Tax Year: 2025
Tax Year | Yr Blt | Property Type | Livable | Stories | Story Height | Baths | Roof |
---|---|---|---|---|---|---|---|
Imp # | Use | Foundation | Exterior | HVAC Type | |||
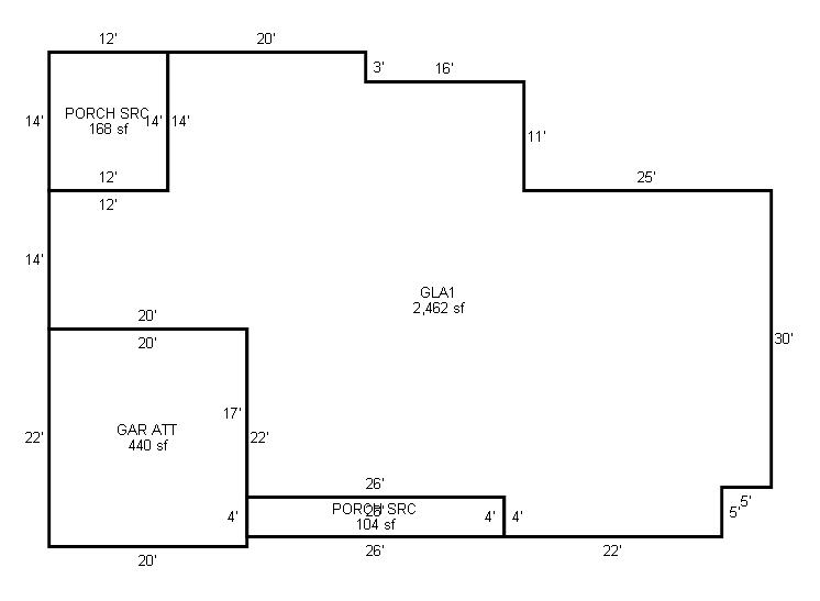
2025 | 1961 | Residential | 2,462 sqft | 1.00 | 8 | 2.00 | Composition Shingle |
1.00 | Ranch 1 Story | Slab | Frame Siding/Brick/Stone Veneer | Cool Air in Heat Ducts |
Tax Year: 2024
Tax Year | Yr Blt | Property Type | Livable | Stories | Story Height | Baths | Roof |
---|---|---|---|---|---|---|---|
Imp # | Use | Foundation | Exterior | HVAC Type | |||
2024 | 1961 | Residential | 2,462 sqft | 1.00 | 8 | 2.00 | Composition Shingle |
1.00 | Ranch 1 Story | Slab | Frame Siding/Brick/Stone Veneer | Cool Air in Heat Ducts |
Tax Year: 2023
Tax Year | Yr Blt | Property Type | Livable | Stories | Story Height | Baths | Roof |
---|---|---|---|---|---|---|---|
Imp # | Use | Foundation | Exterior | HVAC Type | |||
2023 | 1961 | Residential | 2,462 sqft | 1.00 | 8 | 2.00 | Composition Shingle |
1.00 | Ranch 1 Story | Slab | Frame Siding/Brick/Stone Veneer | Cool Air in Heat Ducts |
Values and Tax Information
2023 | 2024 | 2025 | |
---|---|---|---|
Fair Cash(Market) Value | $277,957 | $252,358 | $320,100 |
Total Taxable Value (Capped) | $195,206 | $201,062 | $207,094 |
Improvement Value | $242,221 | $216,622 | $284,364 |
Land Value | $35,736 | $35,736 | $35,736 |
Assessment Ratio | 11% | 11% | 11% |
Gross Assessed Value | $21,473 | $22,117 | $22,780 |
Exemptions | -$1,000 | -$1,000 | -$1,000 |
Net Assessed Value | $20,473 | $21,117 | $21,780 |
School District | T-1A | ||
Tax Rate | 126.91 | 129.51 | 129.51 |
Estimated taxes | $2,598 | $2,735 | $2,821 |
Last Notice Date | 1/28/2025 |
Exemptions Claimed
2023 | 2024 | 2025 | |
---|---|---|---|
Homestead | |||
Additional Homestead | - | - | - |
Senior Valuation Limitation | - | - | - |
100% Disabled Veteran | - | - | - |
Sales/Documents
Sale Date | Grantor | Grantee | Sale Price | Deed Type | Document Number |
---|---|---|---|---|---|
9/17/2018 | CARTNER, ANITA BETH REVOCABLE TRUST, THE | PAGE, JOHN &, WAYNE E GOWER | $184,000 | Warranty Deed | 2018084915 |
2/3/2015 | CARTNER, ANITA BETH | CARTNER, ANITA BETH REVOCABLE TRUST, THE | $0 | General Warranty Deed | 2015009640 |
4/27/2009 | PETERSON FAMILY TRUST, THE | CARTNER, ANITA BETH | $168,000 | Warranty Deed | 2009045424 |
1/22/1991 | $0 | Quit Claim Deed | 2000077693 BK-05299PG-02128 |
Sales/Documents
Sale Date | 9/17/2018 |
---|---|
Grantor | CARTNER, ANITA BETH REVOCABLE TRUST, THE |
Grantee | PAGE, JOHN &, WAYNE E GOWER |
Sale Price | $184,000 |
Deed Type | Warranty Deed |
Document Number | 2018084915 |
Sale Date | 2/3/2015 |
Grantor | CARTNER, ANITA BETH |
Grantee | CARTNER, ANITA BETH REVOCABLE TRUST, THE |
Sale Price | $0 |
Deed Type | General Warranty Deed |
Document Number | 2015009640 |
Sale Date | 4/27/2009 |
Grantor | PETERSON FAMILY TRUST, THE |
Grantee | CARTNER, ANITA BETH |
Sale Price | $168,000 |
Deed Type | Warranty Deed |
Document Number | 2009045424 |
Sale Date | 1/22/1991 |
Grantor | |
Grantee | |
Sale Price | $0 |
Deed Type | Quit Claim Deed |
Document Number | 2000077693 BK-05299PG-02128 |