General Information
| Situs Address | 3935 S DELAWARE AV E TULSA 74105 |
|---|---|
| Owner Name |
MCGUIRE, DEHRA & MAXWELL BRADSHAW
|
| Owner Mailing Address | 3935 S DELAWARE AVE TULSA , OK 741053721 |
| Account Type | Residential |
| Parcel ID | 34175-93-20-08590 |
| Land Area | 0.36 acres / 15,645 sq ft |
| School District | T-1A |
| Legal Description | Subdivision: RANCH ACRES B19-27 (34175) Legal: LT 6 BLK 24 Section: 20 Township: 19 Range: 13 |
| Zoning | View City of Tulsa Zoning Data |
Improvements
Improvements
Tax Year: 2025
| Tax Year | Yr Blt | Property Type | Livable | Stories | Story Height | Baths | Roof |
|---|---|---|---|---|---|---|---|
| Imp # | Use | Foundation | Exterior | HVAC Type | |||
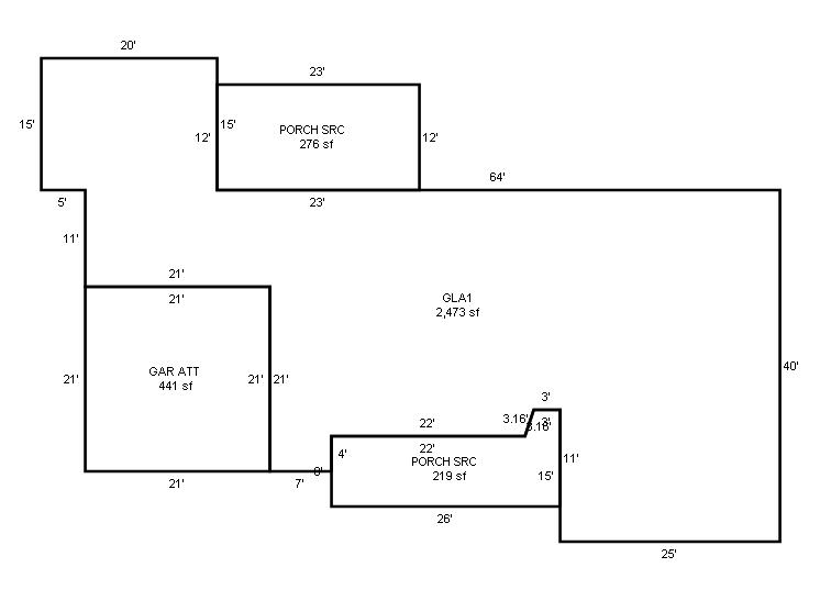
| 2025 | 1955 | Residential | 2,473 sqft | 1.00 | 8 | 2.00 | Composition Shingle |
| 1.00 | Ranch 1 Story | Crawl Space | Frame Brick/Stone Veneer | Cool Air in Heat Ducts | |||
Tax Year: 2024
| Tax Year | Yr Blt | Property Type | Livable | Stories | Story Height | Baths | Roof |
|---|---|---|---|---|---|---|---|
| Imp # | Use | Foundation | Exterior | HVAC Type | |||
| 2024 | 1955 | Residential | 2,473 sqft | 1.00 | 8 | 2.00 | Composition Shingle |
| 1.00 | Ranch 1 Story | Crawl Space | Frame Brick/Stone Veneer | Cool Air in Heat Ducts | |||
Tax Year: 2023
| Tax Year | Yr Blt | Property Type | Livable | Stories | Story Height | Baths | Roof |
|---|---|---|---|---|---|---|---|
| Imp # | Use | Foundation | Exterior | HVAC Type | |||
| 2023 | 1955 | Residential | 2,473 sqft | 1.00 | 8 | 2.00 | Composition Shingle |
| 1.00 | Ranch 1 Story | Crawl Space | Frame Brick/Stone Veneer | Cool Air in Heat Ducts | |||
Values and Tax Information
| 2023 | 2024 | 2025 | |
|---|---|---|---|
| Fair Cash(Market) Value | $459,670 | $361,899 | $812,500 |
| Total Taxable Value (Capped) | $459,670 | $361,899 | $812,500 |
| Improvement Value | $329,870 | $232,099 | $682,700 |
| Land Value | $129,800 | $129,800 | $129,800 |
| Assessment Ratio | 11% | 11% | 11% |
| Gross Assessed Value | $50,564 | $39,809 | $89,375 |
| Exemptions | $0 | $0 | $0 |
| Net Assessed Value | $50,564 | $39,809 | $89,375 |
| School District | T-1A | ||
| Tax Rate | 126.91 | 129.51 | 134.01 |
| Estimated taxes | $6,417 | $5,156 | $11,977 |
| Last Notice Date | 3/25/2025 | ||
Exemptions Claimed
| 2023 | 2024 | 2025 | |
|---|---|---|---|
| Homestead | - | - | Apply |
| Additional Homestead | - | - | - |
| Senior Valuation Limitation | - | - | - |
| 100% Disabled Veteran | - | - | - |
Sales/Documents
| Sale Date | Grantor | Grantee | Sale Price | Deed Type | Document Number |
|---|---|---|---|---|---|
| 9/9/2024 | MCGUIRE, LONNIE MICHAEL & DEBORAH ANNE | MCGUIRE, DEHRA & MAXWELL BRADSHAW | $731,500 | General Warranty Deed | 2024073147 |
| 3/14/2024 | CEO DEZIGNES INC | MCGUIRE, LONNIE MICHAEL & DEBORAH ANNE | $812,500 | General Warranty Deed | 2024019310 |
| 1/26/2023 | C&L AGAPE HOME INVESTORS LLC | CEO DEZIGNES INC | $0 | Quit Claim Deed | 2023032562 |
| 6/13/2022 | TULSA COUNTY TREASURER | CEO DEZIGNES INC | $0 | County Deed | 2022061902 |
| 6/15/2018 | MATETICH, ANNA JO AND GEORGE J, CO TRUSTEES | C & L AGAPE HOME INVESTORS LLC | $315,000 | Trustee's Deed | 2018055717 |
| 11/9/1993 | $0 | Quit Claim Deed | 2000084442 BK-05560PG-01503 |
Sales/Documents
| Sale Date | 9/9/2024 |
|---|---|
| Grantor | MCGUIRE, LONNIE MICHAEL & DEBORAH ANNE |
| Grantee | MCGUIRE, DEHRA & MAXWELL BRADSHAW |
| Sale Price | $731,500 |
| Deed Type | General Warranty Deed |
| Document Number | 2024073147 |
| Sale Date | 3/14/2024 |
| Grantor | CEO DEZIGNES INC |
| Grantee | MCGUIRE, LONNIE MICHAEL & DEBORAH ANNE |
| Sale Price | $812,500 |
| Deed Type | General Warranty Deed |
| Document Number | 2024019310 |
| Sale Date | 1/26/2023 |
| Grantor | C&L AGAPE HOME INVESTORS LLC |
| Grantee | CEO DEZIGNES INC |
| Sale Price | $0 |
| Deed Type | Quit Claim Deed |
| Document Number | 2023032562 |
| Sale Date | 6/13/2022 |
| Grantor | TULSA COUNTY TREASURER |
| Grantee | CEO DEZIGNES INC |
| Sale Price | $0 |
| Deed Type | County Deed |
| Document Number | 2022061902 |
| Sale Date | 6/15/2018 |
| Grantor | MATETICH, ANNA JO AND GEORGE J, CO TRUSTEES |
| Grantee | C & L AGAPE HOME INVESTORS LLC |
| Sale Price | $315,000 |
| Deed Type | Trustee's Deed |
| Document Number | 2018055717 |
| Sale Date | 11/9/1993 |
| Grantor | |
| Grantee | |
| Sale Price | $0 |
| Deed Type | Quit Claim Deed |
| Document Number | 2000084442 BK-05560PG-01503 |