General Information
Situs Address | 6514 S MEMORIAL DR E TULSA 74133 |
---|---|
Owner Name |
GREAVES, JOHN
|
Owner Mailing Address | 6514 S MEMORIAL DR UNIT 20-F TULSA , OK 74133 |
Account Type | Residential |
Parcel ID | 37433-83-02-15005 |
Land Area | 0.00 acres / 0 sq ft |
School District | T-1A |
Legal Description | Subdivision: SHADOW MOUNTAIN CONDOMINIUMS (37433) Legal: BLDG 20 UNIT F & .011225 INT IN COMMON ELEMENTS IN SHADOW MOUNTAIN CONDOMINIUMS IV BEING A PRT OF LT 1 BLK 1 Section: 02 Township: 18 Range: 13 |
Zoning | View City of Tulsa Zoning Data |
Improvements
Improvements
Tax Year: 2025
Tax Year | Yr Blt | Property Type | Livable | Stories | Story Height | Baths | Roof |
---|---|---|---|---|---|---|---|
Imp # | Use | Foundation | Exterior | HVAC Type | |||
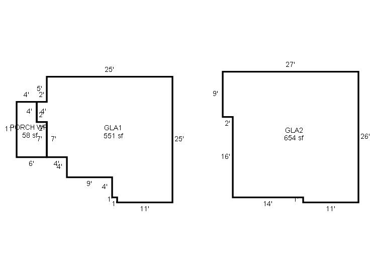
2025 | 1982 | Condo | 1,205 sqft | 2.00 | 8 | 2.10 | Composition Shingle |
1.00 | Condo <= 3 Stories | Slab | Frame Siding/Brick/Stone Veneer | Cool Air in Heat Ducts |
Tax Year: 2024
Tax Year | Yr Blt | Property Type | Livable | Stories | Story Height | Baths | Roof |
---|---|---|---|---|---|---|---|
Imp # | Use | Foundation | Exterior | HVAC Type | |||
2024 | 1982 | Condo | 1,205 sqft | 2.00 | 8 | 2.10 | Composition Shingle |
1.00 | Condo <= 3 Stories | Slab | Frame Siding/Brick/Stone Veneer | Cool Air in Heat Ducts |
Tax Year: 2023
Tax Year | Yr Blt | Property Type | Livable | Stories | Story Height | Baths | Roof |
---|---|---|---|---|---|---|---|
Imp # | Use | Foundation | Exterior | HVAC Type | |||
2023 | 1982 | Condo | 1,205 sqft | 2.00 | 8 | 2.10 | Composition Shingle |
1.00 | Condo <= 3 Stories | Slab | Frame Siding/Brick/Stone Veneer | Cool Air in Heat Ducts |
Values and Tax Information
2023 | 2024 | 2025 | |
---|---|---|---|
Fair Cash(Market) Value | $80,000 | $80,000 | $133,800 |
Total Taxable Value (Capped) | $80,000 | $80,000 | $133,800 |
Improvement Value | $68,900 | $68,900 | $122,700 |
Land Value | $11,100 | $11,100 | $11,100 |
Assessment Ratio | 11% | 11% | 11% |
Gross Assessed Value | $8,800 | $8,800 | $14,718 |
Exemptions | -$1,000 | -$1,000 | -$1,000 |
Net Assessed Value | $7,800 | $7,800 | $13,718 |
School District | T-1A | ||
Tax Rate | 126.91 | 129.51 | 134.01 |
Estimated taxes | $990 | $1,010 | $1,838 |
Last Notice Date | 3/25/2025 |
Exemptions Claimed
2023 | 2024 | 2025 | |
---|---|---|---|
Homestead | |||
Additional Homestead | - | - | - |
Senior Valuation Limitation | - | - | - |
100% Disabled Veteran | - | - | - |
Sales/Documents
Sale Date | Grantor | Grantee | Sale Price | Deed Type | Document Number |
---|---|---|---|---|---|
12/11/2024 | HAYES, ROBERT WAYNE & TWILA SUE | GREAVES, JOHN | $135,000 | Warranty Deed | 2024103890 |
10/16/2015 | BARR, RICHARD & JUDY | HAYES, ROBERT WAYNE & TWILA SUE | $80,000 | Warranty Deed | 2015094139 |
4/26/2012 | BUCKNER INVESTMENTS, INC | BARR, RICHARD & JUDY | $57,000 | General Warranty Deed | 2012061821 |
3/27/2012 | SWEENEY, CATHERINE P TRUSTEE CATHERINE P SWEENEY TR | BUCKNER INVESTMENTS, INC | $50,000 | General Warranty Deed | 2012039984 |
9/18/2000 | $0 | General Warranty Deed | 2000094831 BK-06417PG-01980 |
Sales/Documents
Sale Date | 12/11/2024 |
---|---|
Grantor | HAYES, ROBERT WAYNE & TWILA SUE |
Grantee | GREAVES, JOHN |
Sale Price | $135,000 |
Deed Type | Warranty Deed |
Document Number | 2024103890 |
Sale Date | 10/16/2015 |
Grantor | BARR, RICHARD & JUDY |
Grantee | HAYES, ROBERT WAYNE & TWILA SUE |
Sale Price | $80,000 |
Deed Type | Warranty Deed |
Document Number | 2015094139 |
Sale Date | 4/26/2012 |
Grantor | BUCKNER INVESTMENTS, INC |
Grantee | BARR, RICHARD & JUDY |
Sale Price | $57,000 |
Deed Type | General Warranty Deed |
Document Number | 2012061821 |
Sale Date | 3/27/2012 |
Grantor | SWEENEY, CATHERINE P TRUSTEE CATHERINE P SWEENEY TR |
Grantee | BUCKNER INVESTMENTS, INC |
Sale Price | $50,000 |
Deed Type | General Warranty Deed |
Document Number | 2012039984 |
Sale Date | 9/18/2000 |
Grantor | |
Grantee | |
Sale Price | $0 |
Deed Type | General Warranty Deed |
Document Number | 2000094831 BK-06417PG-01980 |