General Information
| Situs Address | 3214 S OSWEGO AV E TULSA 741351651 | 
|---|---|
| Owner Name | BROWNING, CORINNA MARIE & RILEY SEAMAN | 
| Owner Mailing Address | 3214 S OSWEGO AVE TULSA , OK 741351651 | 
| Account Type | Residential | 
| Parcel ID | 45150-93-21-15300 | 
| Land Area | 0.18 acres / 7,700 sq ft | 
| School District | T-1A | 
| Legal Description | Subdivision: VIRGINIA TERRACE ADDN RESUB B9-10 & 15-16 ALBERT PIKE SUB (45150) Legal: LT 14 BLK 1 Section: 21 Township: 19 Range: 13 | 
| Zoning | View City of Tulsa Zoning Data | 
        
            
                Improvements
            
            
                
                    
                    
                
            
        
    
        
                Improvements
            
            Tax Year: 2025
| Tax Year | Yr Blt | Property Type | Livable | Stories | Story Height | Baths | Roof | 
|---|---|---|---|---|---|---|---|
| Imp # | Use | Foundation | Exterior | HVAC Type | |||
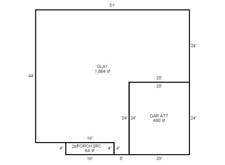
| 2025 | 1958 | Residential | 1,864 sqft | 1.00 | 8 | 3.00 | Composition Shingle | 
| 1.00 | Ranch 1 Story | Crawl Space | Frame Siding/Brick/Stone Veneer | Cool Air in Heat Ducts | |||
Tax Year: 2024
| Tax Year | Yr Blt | Property Type | Livable | Stories | Story Height | Baths | Roof | 
|---|---|---|---|---|---|---|---|
| Imp # | Use | Foundation | Exterior | HVAC Type | |||
| 2024 | 1958 | Residential | 1,864 sqft | 1.00 | 8 | 3.00 | Composition Shingle | 
| 1.00 | Ranch 1 Story | Crawl Space | Frame Siding/Brick/Stone Veneer | Cool Air in Heat Ducts | |||
Tax Year: 2023
| Tax Year | Yr Blt | Property Type | Livable | Stories | Story Height | Baths | Roof | 
|---|---|---|---|---|---|---|---|
| Imp # | Use | Foundation | Exterior | HVAC Type | |||
| 2023 | 1958 | Residential | 1,864 sqft | 1.00 | 8 | 3.00 | Composition Shingle | 
| 1.00 | Ranch 1 Story | Crawl Space | Frame Siding/Brick/Stone Veneer | Cool Air in Heat Ducts | |||
Values and Tax Information
| 2023 | 2024 | 2025 | |
|---|---|---|---|
| Fair Cash(Market) Value | $242,442 | $232,210 | $314,900 | 
| Total Taxable Value (Capped) | $242,442 | $232,210 | $314,900 | 
| Improvement Value | $213,795 | $203,563 | $286,253 | 
| Land Value | $28,647 | $28,647 | $28,647 | 
| Assessment Ratio | 11% | 11% | 11% | 
| Gross Assessed Value | $26,668 | $25,543 | $34,639 | 
| Exemptions | $0 | $0 | -$1,000 | 
| Net Assessed Value | $26,668 | $25,543 | $33,639 | 
| School District | T-1A | ||
| Tax Rate | 126.91 | 129.51 | 134.01 | 
| Estimated taxes | $3,384 | $3,308 | $4,508 | 
| Last Notice Date | 3/25/2025 | ||
Exemptions Claimed
| 2023 | 2024 | 2025 | |
|---|---|---|---|
| Homestead | - | - | |
| Additional Homestead | - | - | - | 
| Senior Valuation Limitation | - | - | - | 
| 100% Disabled Veteran | - | - | - | 
Sales/Documents
| Sale Date | Grantor | Grantee | Sale Price | Deed Type | Document Number | 
|---|---|---|---|---|---|
| 12/13/2024 | THOMAS, MORGAN TAYLOR & TORI ALLAN TRIMBLE | BROWNING, CORINNA MARIE & RILEY SEAMAN | $325,000 | General Warranty Deed | 2024105750 | 
| 2/26/2021 | GRUMMER, LOIS J TRUST THE | THOMAS, MORGAN TAYLOR & , TORI ALLAN TRIMBLE | $239,500 | General Warranty Deed | 2021026228 | 
| 3/29/1995 | $0 | Warranty Deed | 2000121622 BK-05702PG-00402 | 
Sales/Documents
| Sale Date | 12/13/2024 | 
|---|---|
| Grantor | THOMAS, MORGAN TAYLOR & TORI ALLAN TRIMBLE | 
| Grantee | BROWNING, CORINNA MARIE & RILEY SEAMAN | 
| Sale Price | $325,000 | 
| Deed Type | General Warranty Deed | 
| Document Number | 2024105750 | 
| Sale Date | 2/26/2021 | 
| Grantor | GRUMMER, LOIS J TRUST THE | 
| Grantee | THOMAS, MORGAN TAYLOR & , TORI ALLAN TRIMBLE | 
| Sale Price | $239,500 | 
| Deed Type | General Warranty Deed | 
| Document Number | 2021026228 | 
| Sale Date | 3/29/1995 | 
| Grantor | |
| Grantee | |
| Sale Price | $0 | 
| Deed Type | Warranty Deed | 
| Document Number | 2000121622 BK-05702PG-00402 | 
 
                 
                     
                    