General Information
Situs Address | 3004 E 90 CT S TULSA 74137 |
---|---|
Owner Name |
UNITED 90TH COURT LLC C/O F BANDY
|
Owner Mailing Address | 1195 E CAIN DR FAYETTEVILLE , AR 727032044 |
Account Type | Residential |
Parcel ID | 70283-83-17-45495 |
Land Area | 0.14 acres / 5,989 sq ft |
School District | T-5A |
Legal Description | Subdivision: CEDARCREST PARK HOMES RESUB L33-78 & 80-81 B1 CEDARCREST PARK (70283) Legal: LT 26 BLK 2 Section: 17 Township: 18 Range: 13 |
Zoning | View City of Tulsa Zoning Data |
Improvements
Improvements
Tax Year: 2025
Tax Year | Yr Blt | Property Type | Livable | Stories | Story Height | Baths | Roof |
---|---|---|---|---|---|---|---|
Imp # | Use | Foundation | Exterior | HVAC Type | |||
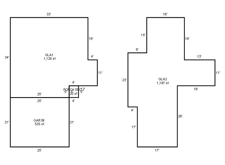
2025 | 1992 | Residential | 2,323 sqft | 1.75 | 8 | 2.10 | Composition Shingle |
1.00 | 1½ Story Fin | Slab | Frame Siding/Brick/Stone Veneer | Cool Air in Heat Ducts |
Tax Year: 2024
Tax Year | Yr Blt | Property Type | Livable | Stories | Story Height | Baths | Roof |
---|---|---|---|---|---|---|---|
Imp # | Use | Foundation | Exterior | HVAC Type | |||
2024 | 1992 | Residential | 2,323 sqft | 1.75 | 8 | 2.10 | Composition Shingle |
1.00 | 1½ Story Fin | Slab | Frame Siding/Brick/Stone Veneer | Cool Air in Heat Ducts |
Tax Year: 2023
Tax Year | Yr Blt | Property Type | Livable | Stories | Story Height | Baths | Roof |
---|---|---|---|---|---|---|---|
Imp # | Use | Foundation | Exterior | HVAC Type | |||
2023 | 1992 | Residential | 2,323 sqft | 1.75 | 8 | 2.10 | Composition Shingle |
1.00 | 1½ Story Fin | Slab | Frame Siding/Brick/Stone Veneer | Cool Air in Heat Ducts |
Values and Tax Information
2023 | 2024 | 2025 | |
---|---|---|---|
Fair Cash(Market) Value | $285,260 | $331,551 | $356,700 |
Total Taxable Value (Capped) | $208,923 | $219,369 | $230,338 |
Improvement Value | $267,332 | $313,623 | $338,772 |
Land Value | $17,928 | $17,928 | $17,928 |
Assessment Ratio | 11% | 11% | 11% |
Gross Assessed Value | $22,981 | $24,131 | $25,337 |
Exemptions | $0 | $0 | $0 |
Net Assessed Value | $22,981 | $24,131 | $25,337 |
School District | T-5A | ||
Tax Rate | 133.14 | 135.75 | 135.75 |
Estimated taxes | $3,060 | $3,276 | $3,440 |
Last Notice Date | 2/28/2025 |
Exemptions Claimed
2023 | 2024 | 2025 | |
---|---|---|---|
Homestead | - | - | Apply |
Additional Homestead | - | - | - |
Senior Valuation Limitation | - | - | - |
100% Disabled Veteran | - | - | - |
Sales/Documents
Sale Date | Grantor | Grantee | Sale Price | Deed Type | Document Number |
---|---|---|---|---|---|
10/1/2005 | $0 | History | 2005131213 | ||
6/1/2004 | CEDARCREST PARK HOMES, INC | CEDAR CREST PARK VENTURES LLC | $0 | History | 2004075194 |
Sales/Documents
Sale Date | 10/1/2005 |
---|---|
Grantor | |
Grantee | |
Sale Price | $0 |
Deed Type | History |
Document Number | 2005131213 |
Sale Date | 6/1/2004 |
Grantor | CEDARCREST PARK HOMES, INC |
Grantee | CEDAR CREST PARK VENTURES LLC |
Sale Price | $0 |
Deed Type | History |
Document Number | 2004075194 |