R70285831744890
2857 E 90 ST S TULSA 74137
$198,600
$10,465
Visit Treasurer's Website
General Information
Situs Address 2857 E 90 ST S TULSA 74137
Owner Name
HEILIGER, GORDONA DUCA
Owner Mailing Address 5139 E 106TH ST
TULSA , OK 741377218
Account Type Residential
Parcel ID 70285-83-17-44890
Land Area 0.00 acres / 0 sq ft
School District T-5A
Legal Description Subdivision: CEDARCREST PARK RESUB L1-11 B2 CEDAR CREST (70285)
Legal: UNIT 29 BLDG 7 & 1/32 INT IN COMMON ELEMENTS IN CEDARCREST PARK TOWNHOMES PHASE II BEING LTS 13 THRU 32 & LT 79 LESS W288.66 BLK 1
Section: 17 Township: 18 Range: 13
Zoning View City of Tulsa Zoning Data
Improvements
Tax Year: 2025
Tax Year Yr Blt Property Type Livable Stories Story Height Baths Roof
Imp # Use Foundation Exterior HVAC Type
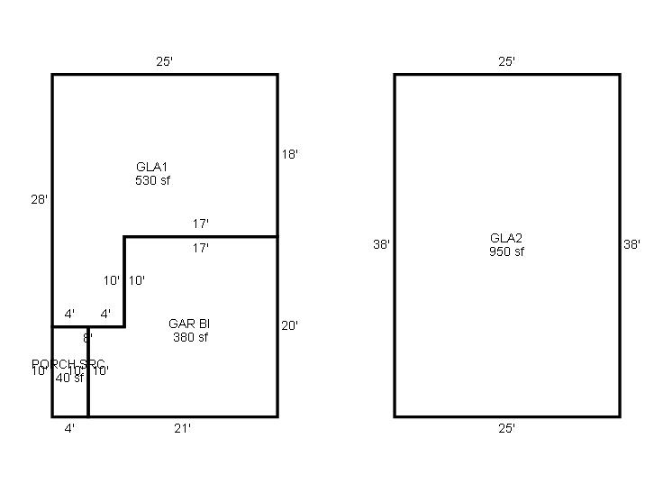
2025 1983 Condo 1,480 sqft 2.00 8 2.00 Composition Shingle
1.00 Condo <= 3 Stories Slab Frame Siding/Brick/Stone Veneer Cool Air in Heat Ducts
Tax Year: 2024
Tax Year Yr Blt Property Type Livable Stories Story Height Baths Roof
Imp # Use Foundation Exterior HVAC Type
2024 1983 Condo 1,480 sqft 2.00 8 2.00 Composition Shingle
1.00 Condo <= 3 Stories Slab Frame Siding/Brick/Stone Veneer Cool Air in Heat Ducts
Tax Year: 2023
Tax Year Yr Blt Property Type Livable Stories Story Height Baths Roof
Imp # Use Foundation Exterior HVAC Type
2023 1983 Condo 1,480 sqft 2.00 8 2.00 Composition Shingle
1.00 Condo <= 3 Stories Slab Frame Siding/Brick/Stone Veneer Cool Air in Heat Ducts
Values and Tax Information
2023 2024 2025
Fair Cash(Market) Value $90,600 $90,600 $198,600
Total Taxable Value (Capped) $90,600 $90,600 $95,130
Improvement Value $76,300 $76,300 $184,300
Land Value $14,300 $14,300 $14,300
Assessment Ratio 11% 11% 11%
Gross Assessed Value $9,966 $9,966 $10,465
Exemptions $0 $0 $0
Net Assessed Value $9,966 $9,966 $10,465
School District T-5A
Tax Rate 133.14 135.75 141.38
Estimated taxes $1,327 $1,353 $1,480
Last Notice Date 3/25/2025
Exemptions Claimed
2023 2024 2025
Homestead - - Apply
Additional Homestead - - -
Senior Valuation Limitation - - -
100% Disabled Veteran - - -
Sales/Documents
Sale Date Grantor Grantee Sale Price Deed Type Document Number
10/1/1993 $48,500 Warranty Deed 2000189381 BK-05548PG-02064
Sales/Documents
Sale Date 10/1/1993
Grantor
Grantee
Sale Price $48,500
Deed Type Warranty Deed
Document Number 2000189381 BK-05548PG-02064
Images
Sketches