General Information
Situs Address | 218 W DURHAM PL S BROKEN ARROW 74011 |
---|---|
Owner Name |
HUYNH, LIHN N
|
Owner Mailing Address | 218 W DURHAM PL BROKEN ARROW , OK 74012 |
Account Type | Residential |
Parcel ID | 81300-84-26-63700 |
Land Area | 0.23 acres / 9,887 sq ft |
School District | BA-3A |
Legal Description | Subdivision: SUN RIDGE (81300) Legal: LT 6 BLK 2 Section: 26 Township: 18 Range: 14 |
Zoning | View INCOG's Zoning Data |
Improvements
Improvements
Tax Year: 2025
Tax Year | Yr Blt | Property Type | Livable | Stories | Story Height | Baths | Roof |
---|---|---|---|---|---|---|---|
Imp # | Use | Foundation | Exterior | HVAC Type | |||
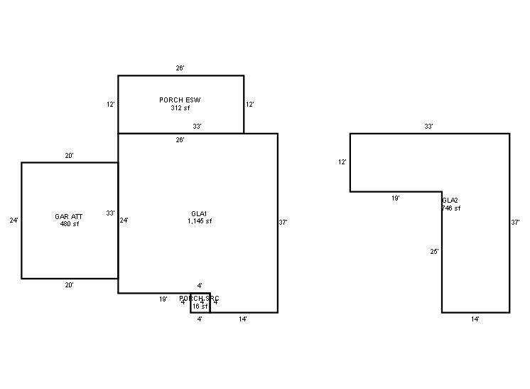
2025 | 2001 | Residential | 1,891 sqft | 1.50 | 8 | 2.00 | Composition Shingle |
1.00 | 1½ Story Fin | Slab | Frame Siding/Brick/Stone Veneer | Cool Air in Heat Ducts |
Tax Year: 2024
Tax Year | Yr Blt | Property Type | Livable | Stories | Story Height | Baths | Roof |
---|---|---|---|---|---|---|---|
Imp # | Use | Foundation | Exterior | HVAC Type | |||
2024 | 2001 | Residential | 1,891 sqft | 1.50 | 8 | 2.00 | Composition Shingle |
1.00 | 1½ Story Fin | Slab | Frame Siding/Brick/Stone Veneer | Cool Air in Heat Ducts |
Tax Year: 2023
Tax Year | Yr Blt | Property Type | Livable | Stories | Story Height | Baths | Roof |
---|---|---|---|---|---|---|---|
Imp # | Use | Foundation | Exterior | HVAC Type | |||
2023 | 2001 | Residential | 1,891 sqft | 1.50 | 8 | 2.00 | Composition Shingle |
1.00 | 1½ Story Fin | Slab | Frame Siding/Brick/Stone Veneer | Cool Air in Heat Ducts |
Values and Tax Information
2023 | 2024 | 2025 | |
---|---|---|---|
Fair Cash(Market) Value | $256,475 | $240,626 | $262,600 |
Total Taxable Value (Capped) | $163,691 | $168,602 | $173,660 |
Improvement Value | $229,371 | $213,522 | $235,496 |
Land Value | $27,104 | $27,104 | $27,104 |
Assessment Ratio | 11% | 11% | 11% |
Gross Assessed Value | $18,006 | $18,546 | $19,103 |
Exemptions | -$1,000 | -$1,000 | -$1,000 |
Net Assessed Value | $17,006 | $17,546 | $18,103 |
School District | BA-3A | ||
Tax Rate | 128.50 | 128.81 | 128.81 |
Estimated taxes | $2,185 | $2,260 | $2,332 |
Last Notice Date | 2/28/2025 |
Exemptions Claimed
2023 | 2024 | 2025 | |
---|---|---|---|
Homestead | |||
Additional Homestead | - | - | - |
Senior Valuation Limitation | - | - | - |
100% Disabled Veteran | - | - | - |
Sales/Documents
Sale Date | Grantor | Grantee | Sale Price | Deed Type | Document Number |
---|---|---|---|---|---|
4/17/2017 | HUYNH, LIHN N | TRAC, ALAN & ANDREW H & CRYSTAN L | $0 | Transfer on Death | 2017034628 |
12/1/2000 | $127,500 | General Warranty Deed | 2000257030 BK-06450PG-01581 |
Sales/Documents
Sale Date | 4/17/2017 |
---|---|
Grantor | HUYNH, LIHN N |
Grantee | TRAC, ALAN & ANDREW H & CRYSTAN L |
Sale Price | $0 |
Deed Type | Transfer on Death |
Document Number | 2017034628 |
Sale Date | 12/1/2000 |
Grantor | |
Grantee | |
Sale Price | $127,500 |
Deed Type | General Warranty Deed |
Document Number | 2000257030 BK-06450PG-01581 |