General Information
Situs Address | 15200 N 113 AV E COLLINSVILLE 74021 |
---|---|
Owner Name |
BOOMGAARD, JOHN C & SHANNON L
|
Owner Mailing Address | 15200 N 113TH EAST AVE COLLINSVILLE , OK 70421 |
Account Type | Residential |
Parcel ID | 92419-24-19-09630 |
Land Area | 0.64 acres / 27,878 sq ft |
School District | 6B |
Legal Description | Subdivision: UNPLATTED (92419) Legal: N180 S551.50 E205 E/2 NE LESS E50 FOR RD SEC 19 22 14 .64AC Section: 19 Township: 22 Range: 14 |
Zoning | View INCOG's Zoning Data |
Improvements
Improvements
Tax Year: 2025
Tax Year | Yr Blt | Property Type | Livable | Stories | Story Height | Baths | Roof |
---|---|---|---|---|---|---|---|
Imp # | Use | Foundation | Exterior | HVAC Type | |||
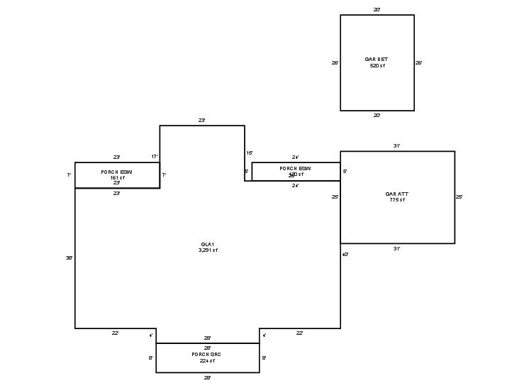
2025 | 1960 | Residential | 3,291 sqft | 1.00 | 8 | 3.00 | Composition Shingle |
1.00 | Ranch 1 Story | Crawl Space | Frame Masonry Veneer | Cool Air in Heat Ducts |
Tax Year: 2024
Tax Year | Yr Blt | Property Type | Livable | Stories | Story Height | Baths | Roof |
---|---|---|---|---|---|---|---|
Imp # | Use | Foundation | Exterior | HVAC Type | |||
2024 | 1960 | Residential | 3,291 sqft | 1.00 | 8 | 3.00 | Composition Shingle |
1.00 | Ranch 1 Story | Crawl Space | Frame Masonry Veneer | Cool Air in Heat Ducts |
Tax Year: 2023
Tax Year | Yr Blt | Property Type | Livable | Stories | Story Height | Baths | Roof |
---|---|---|---|---|---|---|---|
Imp # | Use | Foundation | Exterior | HVAC Type | |||
2023 | 1960 | Residential | 3,291 sqft | 1.00 | 8 | 3.00 | Composition Shingle |
1.00 | Ranch 1 Story | Crawl Space | Frame Masonry Veneer | Cool Air in Heat Ducts |
Values and Tax Information
2023 | 2024 | 2025 | |
---|---|---|---|
Fair Cash(Market) Value | $170,500 | $170,500 | $170,500 |
Total Taxable Value (Capped) | $170,500 | $170,500 | $170,500 |
Improvement Value | $156,100 | $156,100 | $156,100 |
Land Value | $14,400 | $14,400 | $14,400 |
Assessment Ratio | 11% | 11% | 11% |
Gross Assessed Value | $18,755 | $18,755 | $18,755 |
Exemptions | $0 | $0 | $0 |
Net Assessed Value | $18,755 | $18,755 | $18,755 |
School District | 6B | ||
Tax Rate | 113.87 | 115.33 | 117.24 |
Estimated taxes | $2,136 | $2,163 | $2,199 |
Last Notice Date | There is no recent notice date for this property |
Exemptions Claimed
2023 | 2024 | 2025 | |
---|---|---|---|
Homestead | - | - | Apply |
Additional Homestead | - | - | - |
Senior Valuation Limitation | - | - | - |
100% Disabled Veteran | - | - | - |
Sales/Documents
Sale Date | Grantor | Grantee | Sale Price | Deed Type | Document Number |
---|---|---|---|---|---|
7/21/2008 | BOOMGAARD, JOHN C | BOOMGAARD, JOHN C & SHANNON L | $0 | General Warranty Deed | 2008079237 |
10/1/2006 | PHILLIPS, TABITHA, PERSONAL REPRESENTATIVE | BOOMGAARD, JOHN C | $147,000 | General Warranty Deed | 2006123968 |
Sales/Documents
Sale Date | 7/21/2008 |
---|---|
Grantor | BOOMGAARD, JOHN C |
Grantee | BOOMGAARD, JOHN C & SHANNON L |
Sale Price | $0 |
Deed Type | General Warranty Deed |
Document Number | 2008079237 |
Sale Date | 10/1/2006 |
Grantor | PHILLIPS, TABITHA, PERSONAL REPRESENTATIVE |
Grantee | BOOMGAARD, JOHN C |
Sale Price | $147,000 |
Deed Type | General Warranty Deed |
Document Number | 2006123968 |